案例详情
CASE DETAILS
费洛伦撒的夏天
欧式名都花园 / 108㎡㎡ / 2室2厅1厨1卫 / 欧式美式
方案设计︱刘思彤设计
施工还原︱刘思彤设计 | 瀚石施工
整体软装︱刘思彤设计 | ASUKA家居

Living Room
室内采光良好,设计师以米色及浅绿色为基底,搭配亮色软装,营造出简洁又舒适的空间氛围。
棕色的家具,亮色的软装,让客厅在沉稳之中透露着灵动与俏皮的气息。





Dining Room
开放式的空间布局,在客餐厅空间整洁有序的基础上,又保留了通透性,白色的餐边柜,
打造出清爽洁净的视觉感受,而浅棕色的餐桌椅让质感与沉稳的气息得到延伸。




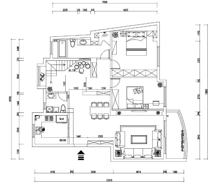
平面规划图
模拟效果图



实景 PK 效果图
实景必须玩败效果图!设计必须100%还原!!
用设计证明我们的存在,是我们的设计宗旨!
我们追求的永远是:人性实用基础,给空间化个“淡妆”
简单、高品、舒适、温馨!这个八个关键字!是我们对“家”这个空间的理解!
我们拒绝:“一切华而不实”
END


LEAVING A MESSGE

